メニュー
TOP
3つの視点
主な作品
会社概要
お問い合わせ
ブログ
主な作品
opus
>
主な作品
> kys project 2021
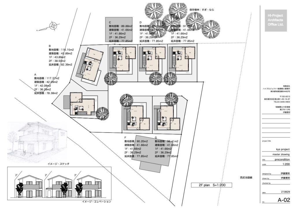
kys project 2021
design
一覧へ戻る
TOP
3つの視点
主な作品
会社概要
お問い合わせ
ブログ